
Металните безбедносни огради се произведени од Ливејјуан, професионален производител на кинески челични структури. Фабрика за директна гаранција за продажба гарантиран квалитет. Тие се широко користени како безбедносни уреди за wallsидови, огради и куќишта. Го поздравуваме вашето испитување!
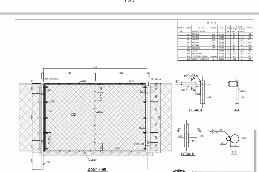
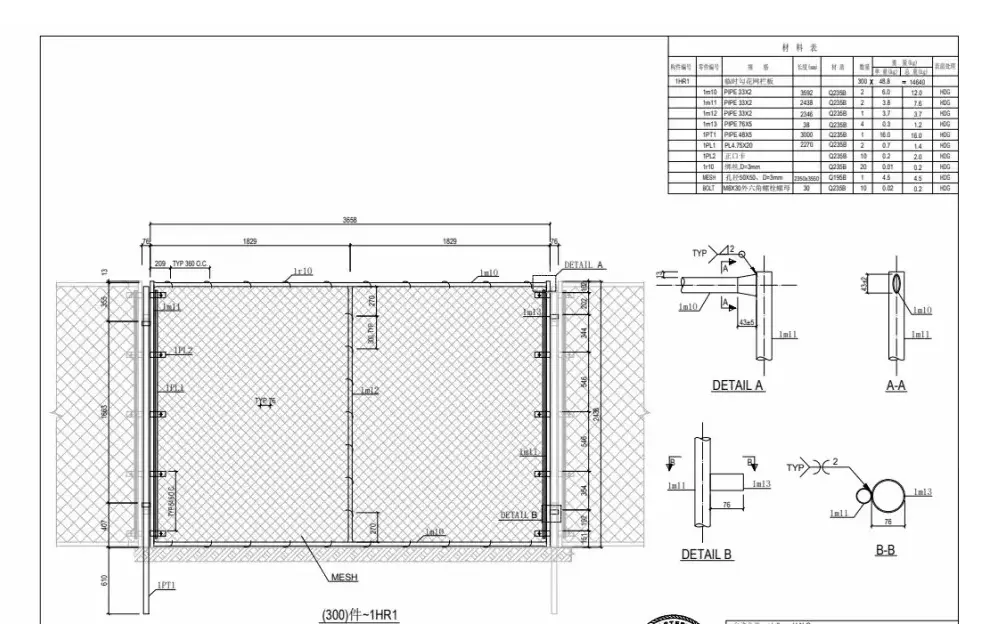
Главните структурни компоненти на металните безбедносни огради на Ливејјуан вклучуваат рамки, надолжни греди, конектори и места за поддршка. Рамката првенствено е конструирана од најразлични метални материјали и доаѓа во различни форми за да ги задоволи индивидуалните потреби за дизајн. Материјалите за рамки првенствено вклучуваат галванизиран челичен лим, галванизирана тркалезна цевка, галванизирана квадратна цевка и ограда за врски со ланци. Овие материјали се избираат за нивната издржливост и отпорност на корозија. Надолжните греди се фиксирани помеѓу рамките на оградата, подобрување на нивната сила и цврстина, што ги прави постабилни и сигурни.
Конекторите се клучни компоненти што ја поврзуваат оградата со натписите за поддршка. Ние користиме галванизиран челичен лим, галванизиран тркалезен челик и галванизирани цевки. Овие материјали нудат одличен отпор на ветер и земјотрес, спречувајќи олабавување за време на употребата и обезбедување на безбедност и стабилност на оградата. Пораките за поддршка се примарните компоненти за поддршка на оградата. Можеме да користиме различни натписи за поддршка во зависност од локацијата, потребите и околината. Сепак, материјалите што се користат за овие места мора да поседуваат висока стабилност, отпорност на ветер и земјотрес и издржливост за да се обезбеди безбедност за време на употребата.


Нашите метални безбедносни огради се отстранливи и еднократно. Нивната висина, ширина и методи за поврзување можат да бидат дизајнирани и произведени за да одговараат на потребите на клиентите и сценаријата за примена, обезбедувајќи безбедност и пријателство за животната средина.


Нашите метални безбедносни огради ефикасно ги одделуваат градежните места од други згради и патишта, создавајќи изолиран работен простор. Тие можат да бидат расклопени и повторно да се соберат по потреба.
Мрежите за изолација на работилницата најчесто се користат во индустриските работилници како опрема за безбедност, пред се за да се демаркираат работните области, да се изолираат опасна опрема и да се заштитат работниците.
Нашите производи исто така можат да се користат како оградување на магацин во затворен простор за да се заштитат работните области во затворен простор. Тие се користат во различни простории за складирање, како што се магацини, логистички центри и фабрики.
Вообичаени големини за метални безбедносни огради од Ливејјуан вклучуваат: 2 метри долги до 1,5 метри; 2,5 метри долга до 2 метри; и долги 3 метри долга 2,5 метри. Достапни се сопствени големини. Челичните материјали вклучуваат Q235B, Q355B, A36 и A572, исполнување на европски и американски стандарди.
